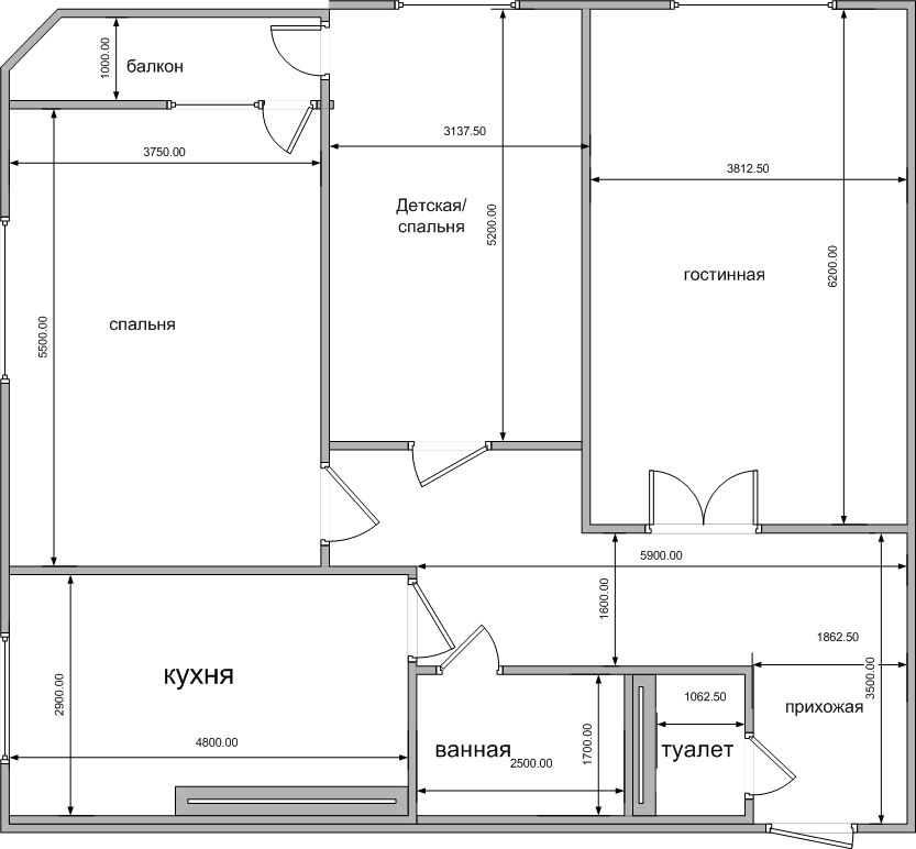
Пгынфкф Опубликовано: 16 сентября, 2010 Жалоба Share Опубликовано: 16 сентября, 2010 (изменено) Срочно, в связи с отъездом! Квартира в «Глобал-Азери» ЛТД, Ени-Ясамал, ул.Талыблы. 4/18, пл.112 кв.м, отличная планировка, дом будет сдан весной 2011 года. Цена 680ман/кв.м. Оплата 50тыс.ман., остальное по частям в течении года-полутора. Все чеки есть. продаю сам. Дом является частью комплекса, с 2-х этажным подземным гаражом, во дворе машин по проекту не будет, только скамейки, деревья и качели разные. дом уже 4-й год как строится, сейчас идут отделочные работы. Весной можно приступить к ремонту. На фотке чертеж и размеры квартиры и комнат. Проект как видите отличные, ничего переделывать не нужно. Штукатурка и шпаклевка на стенах уже есть. эмаил - ires@mail.ru если интересно - пишите, обменяемся номерами телефонов, созвонимся, встретимся, посмотрите на квартиру. Хусейн Изменено 16 сентября, 2010 пользователем Пгынфкф Цитата Ссылка на комментарий Поделиться на других сайтах More sharing options...
West Опубликовано: 16 сентября, 2010 Жалоба Share Опубликовано: 16 сентября, 2010 Это далеко от Бизим Маркета или Гисмета? Цитата You Will Never Walk Alone... Ссылка на комментарий Поделиться на других сайтах More sharing options...
Пгынфкф Опубликовано: 16 сентября, 2010 Автор Жалоба Share Опубликовано: 16 сентября, 2010 после того как проезжаете заправку Гюнеш-Петрол и спускаетесь вниз по горке, справа будет ярмака, слева несколько новостроек наша - это та что 2 здания в виде комплекса - по счету 3-е получается. до него 2 отдельно стоящие новостройки Это далеко от Бизим Маркета или Гисмета? Цитата Ссылка на комментарий Поделиться на других сайтах More sharing options...
West Опубликовано: 16 сентября, 2010 Жалоба Share Опубликовано: 16 сентября, 2010 Аллах базар еласин..но цена немного завышена...в нашем здании по 580 манат продают и то все ужасаються мол ка кдорого...тоже в Ени Ясамал... Цитата You Will Never Walk Alone... Ссылка на комментарий Поделиться на других сайтах More sharing options...
Пгынфкф Опубликовано: 16 сентября, 2010 Автор Жалоба Share Опубликовано: 16 сентября, 2010 спасибо, я продаю по своей цене, не добавляю ничего сверху.. могу 1000 сбросить себе в убыток если реальный покупатель будет в течении недели-двух Цитата Ссылка на комментарий Поделиться на других сайтах More sharing options...
West Опубликовано: 16 сентября, 2010 Жалоба Share Опубликовано: 16 сентября, 2010 Да понимаю...вы просто купили на пике цен... Цитата You Will Never Walk Alone... Ссылка на комментарий Поделиться на других сайтах More sharing options...
Пгынфкф Опубликовано: 17 сентября, 2010 Автор Жалоба Share Опубликовано: 17 сентября, 2010 (изменено) у них и сейчас такая цена - можете позвонить им и спросить по телефону - 700 манат 1-2 комнатные, 680 манат - 3-х комнатные.. у меня преимущество в этаже и планировке плюс у нас комплекс а не отдельно стоящее здание Изменено 17 сентября, 2010 пользователем Пгынфкф Цитата Ссылка на комментарий Поделиться на других сайтах More sharing options...
Recommended Posts
Join the conversation
You can post now and register later. If you have an account, sign in now to post with your account.